Ricerca

Casa singola in Vendita a Ascoli Piceno

Zona: Carpineto

166 mq 8 Locali 4 Camere 3 Bagni

Classe energetica

G
Codice: 3634 € 125.000
Informazioni immobile

Ascoli Piceno, frazione Case di Cioccio, immersa nella tranquillità delle colline Ascolane a soli 7 chilometri da Ascoli Piceno, con una splendida vista panoramica che spazia dalle montagne fino alla costa Adriatica, Casa singola di mq 166 circa con corte esclusiva e terreno.
L'immobile si trova in buono stato di uso e manutenzione, all'occorrenza abitabile da subito, è libero su quattro lati è situato nella piccola frazione chiamata Case di Cioccio che è poco distante da Ascoli Piceno, inserita in un piccolo borgo di case alcune delle quali abitate tutto l’anno è immersa in una natura incontaminata; dalle finestre del fabbricato si gode di un panorama impareggiabile che scopre tutta la catena dei monti Sibillini fino al mare.
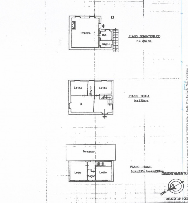
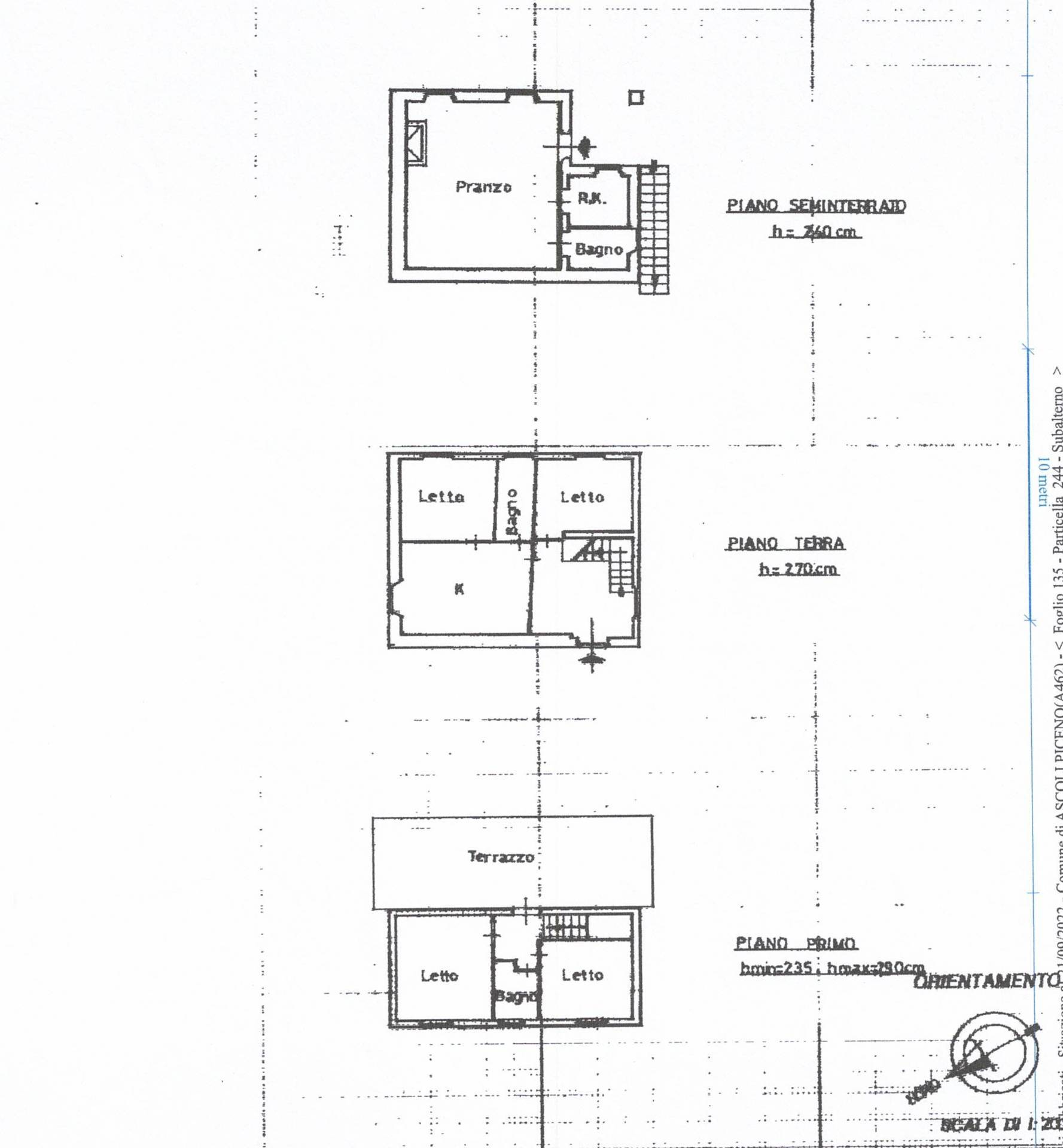
Ha una superficie coperta complessiva di circa 166 mq su due livelli. Al piano seminterrato troviamo il rustico con bagno, al piano terra cucina abitabile, due camere matrimoniali e bagno; al piano primo due camere matrimoniali un bagno e ampio terrazzo. Completa la proprietà una corte circostante e un terreno agricolo.

Informazioni immobile
Codice: 3634
Contratto: Vendita
Tipologia: Casa singola
Regione: Marche
Provincia: Ascoli Piceno
Comune: Ascoli Piceno
Zona: Carpineto
Prezzo: € 125.000 trattabili
Totale mq: 166 mq
Camere: 4
Bagni: 3
Locali: 8
Stato conservazione: Buono
Piano: Piano terra
Piani totali: Si
Riscaldamento: Autonomo
Posto auto: Scoperto
Infissi: alluminio/vetro
Termosifoni: ghisa
Stato attuale: Libero al rogito
Disponibile: Si
Esposizione: sud/est/ovest/nord
Terrazzo: Presente
Giardino: Privato
Cucina: Abitabile
Posizione: Zona agricola
Caratteristiche
Terrazza
Antenna Tv: Autonoma
Camino
Impianto Elettrico: A norma
Infissi in alluminio
Persiane
Nelle vicinanze
Campi da Calcio
Piste Ciclabili
Trasporti Pubblici

Mappa immobile

Ultimo aggiornamento 30-10-2025