Ricerca

Studio/Ufficio in Vendita a Ascoli Piceno

Zona: Centro Storico

125 mq 7 Locali 1 Bagni

Classe energetica

G
Codice: 3638 € 410.000
Informazioni immobile

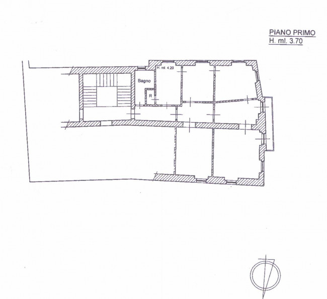
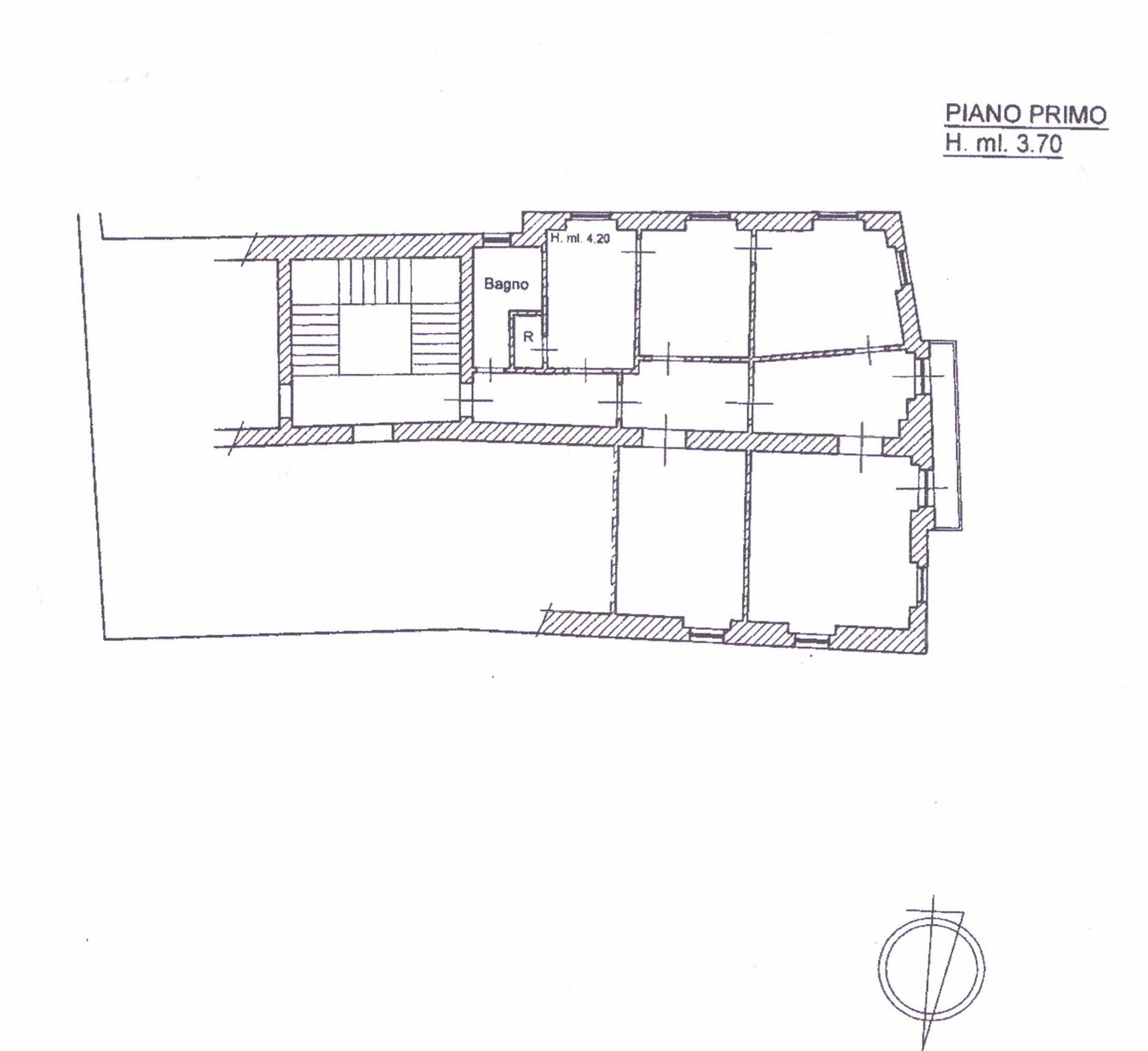
Ascoli Piceno, Piazza del Popolo, splendido ufficio di mq 125 posto al piano primo di un antico palazzo dell'800 vincolato dalla sopraintendenza per beni ambientali e architettonici nei pressi dello storico "Caffè Meletti", la facciata del palazzo presenta l'aspetto tipico dei palazzi ascolani con l'inserimento di un rivestimento in pietra locale (travertino ascolano), altri importanti restauri furono effettuati nel 1923. Attraverso una splendida scalinata si accede al piano primo dove è posto l'ufficio così diviso; ingresso, bagno, cucina abitabile, cinque ampie stanze di cui due con accesso al terrazzino. Particolarità storiche interne, pavimento in graniglia originario dell'epoca e porte sempre dell'epoca.

Informazioni immobile
Codice: 3638
Contratto: Vendita
Tipologia: Studio/Ufficio
Regione: Marche
Provincia: Ascoli Piceno
Comune: Ascoli Piceno
Zona: Centro Storico
Prezzo: € 410.000 trattabili
Totale mq: 125 mq
Bagni: 1
Locali: 7
Stato conservazione: Buono
Riscaldamento: Autonomo
Caratteristiche
Bagni: a Norma
Nelle vicinanze
Palestre
Centri Benessere
Campi da Calcio
Complessi Sportivi
Campi da Tennis
Piste Ciclabili
Parchi Giochi
Trasporti Pubblici
Asilo
Scuole Elementari
Scuole Medie
Scuole Superiori
Bar
Uffici postali
Centri commerciali
Uffici comunali

Mappa immobile

Ultimo aggiornamento 05-12-2025