Ricerca

Casa indipendente in Affitto a Ascoli Piceno

Zona: Centro Storico

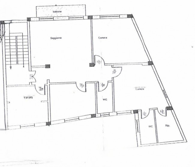
100 mq 4 Locali 3 Camere 3 Bagni

Classe energetica

F
Codice: 3650 € 1.000
Informazioni immobile

Ascoli Piceno. Portion of a single house of about 100 m2 located in the historical centre, specifically Piazzarola. Composed of the entrance, living room with kitchen area and bathroom on the ground floor. Upstairs we can find the master bedroom, a smaller bedroom or study and a bathroom. Mansard floor is another bedroom or study with a small panoramic terrace. At the moment the property needs finishings.

Informazioni immobile
Codice: 3650
Contratto: Affitto
Tipologia: Casa indipendente
Regione: Marche
Provincia: Ascoli Piceno
Comune: Ascoli Piceno
Zona: Centro Storico
Prezzo: € 1.000
Totale mq: 100 mq
Camere: 3
Bagni: 3
Locali: 4
Stato conservazione: Ottimo
Piano: Piano terra
Piani totali: 2
Riscaldamento: Autonomo
Infissi: dopio vetro/legno
Termosifoni: ghisa
Stato attuale: Libero al rogito
Disponibile: Si
Esposizione: sud
Terrazzo: Presente
Cucina: Cucinotto
Caratteristiche
Antenna Tv: Autonoma
Parquet
Impianto Elettrico: A norma
Sanitari sospesi
Doccia
Infissi in legno
Persiane
Nelle vicinanze
Palestre
Centri Benessere
Campi da Calcio
Complessi Sportivi
Campi da Tennis
Piste Ciclabili
Parchi Giochi
Trasporti Pubblici
Asilo
Scuole Elementari
Scuole Medie
Scuole Superiori
Bar
Uffici postali
Centri commerciali

Mappa immobile

Ultimo aggiornamento 19-02-2026