Ricerca

Ufficio in Affitto a Ascoli Piceno

Zona: Centro Storico

120 mq 6 Locali 3 Camere 2 Bagni

Classe energetica

F
Codice: 3662 € 1.200
Informazioni immobile

Ascoli Piceno centro storico a pochi passi da Piazza Arringo, Ufficio di mq 120 circa con fondaco, è situato al secondo piano in un piccolo ed elegante fabbricato a due piani e con sole due unità abitative senza costi condominiali.
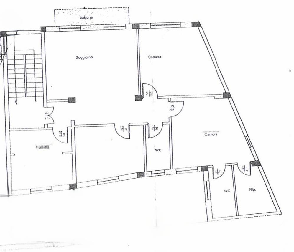
L'immobile ha una superficie di circa 120 mq oltre ad un fondaco.
E' attualmente composto da ingresso su disimpegno, cinque ampie stanze con balcone, una cucina separata ed abitabile, due camere matrimoniale, uno studio/camera, due bagni ; la proprietà è completata da un fondaco/cantina al piano seminterrato. L'appartamentino si presenta in ottime condizioni di uso e manutenzione. Si presenta in ottime condizioni con infissi nuovi, portone blindato. E’ esposto su due lati Est ed Ovest con vista San Marco e si presenta estremamente luminoso ed asciutto.
E’ situato nella zona più richiesta e più servita della città con banche, supermercati, bar, parrucchierie, mercati rionali, scuole, chiese, uffici, farmacie, giardini, situati nelle immediate adiacenze del fabbricato e con la Piazza Arringo a 50 metri.

Informazioni immobile
Codice: 3662
Contratto: Affitto
Tipologia: Ufficio
Regione: Marche
Provincia: Ascoli Piceno
Comune: Ascoli Piceno
Zona: Centro Storico
Prezzo: € 1.200
Totale mq: 120 mq
Camere: 3
Bagni: 2
Locali: 6
Stato conservazione: Ottimo
Piano: 2
Piani totali: 2
Riscaldamento: Autonomo
Infissi: Legno /doppio vetro
Termosifoni: ghisa
Stato attuale: Libero al rogito
Disponibile: Si
Esposizione: Est/ovest
Balconi: Presente
Cucina: Abitabile
Posizione: Centrale
Caratteristiche
Antenna Tv: Autonoma
Cantina
Impianto Telefonico
Impianto Elettrico: A norma
Infissi in legno
Tapparelle
Nelle vicinanze
Palestre
Centri Benessere
Campi da Calcio
Complessi Sportivi
Campi da Tennis
Piste Ciclabili
Parchi Giochi
Stazione Ferroviaria
Trasporti Pubblici
Asilo
Scuole Elementari
Scuole Medie
Scuole Superiori
Bar
Uffici postali
Centri commerciali
Uffici comunali

Mappa immobile

Ultimo aggiornamento 14-04-2026